3509 Anderson Arbor - Mission Ranch

AVAILABLE - Under Construction

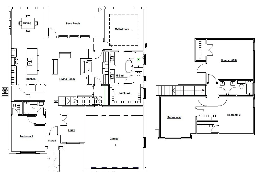
Mission Ranch

Address: 3509 Anderson Arbor

Floor Plans: 4 Bed/3 Bath + Study + Bonus Room

Sq ft: 2960

Subdivision: Mission Ranch

Sale price: $795,000

Status: Move in Ready Oct ‘26


For More Information:
Phone
: 979.324.6682
Email: info@magruderhomes.com